B 17
Erweiterung eines Einfamilienhauses um eine Meerwasserschwimmhalle
München - Harlaching
Auftraggeber: Privat
LPH 1-3
2013
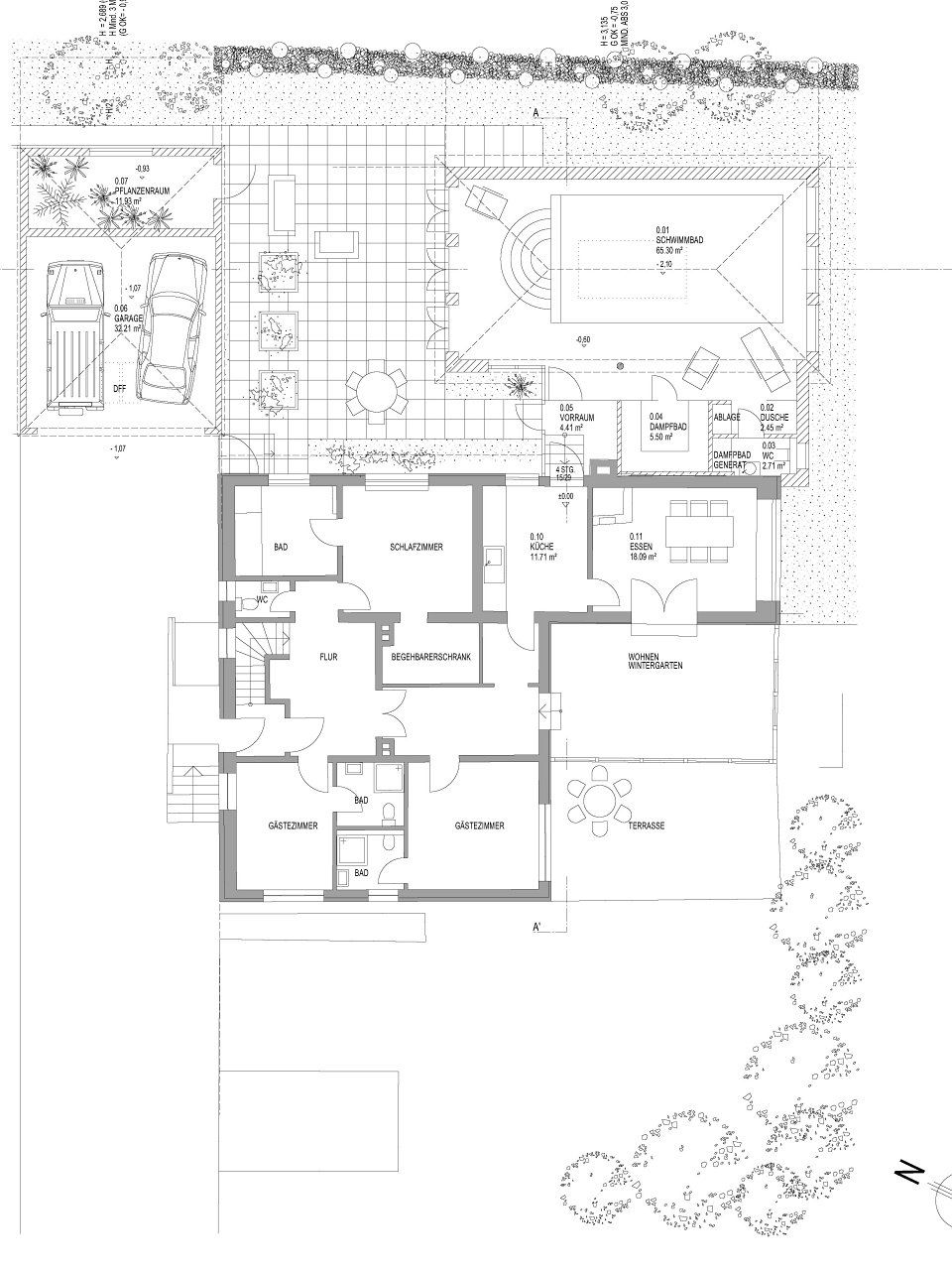
Ein bestehendes Einfamilienhaus aus den 1930er Jahren, welches im Laufe seiner Geschichte mehrfach umgebaut und erweitert wurde, sollte auf Wunsch der Eigentümer eine Schwimmhalle erhalten.
Die Planung erfolgte in 2 Varianten als Flachdach- und Walmdachlösung. Im rückwärtigen Grundstücksbereich bildet die neue Schwimmhalle einen Innenhof in Kombination mit einer neuen Garage/Orangerie.
Die Ausführung der Walmdachvariante erfolgte durch die Eigentümer mit einem Generalunternehmer.






